Mycond presents a brand new supply-and-exhaust unit of MVC-A series designed to reliably maintain a comfortable environment in an office, storage or utility room. The advanced multi-functional MVC-A installation has a simplified design that increases its reliability. The product range offers units with a capacity from 500 to 2000 m3/h.

**with a dedicated controller available as an option
* Available as an option
The key features of this compact unit include arrangement of supply and exhaust air flows, advanced G4 filters, as well as heat or cold recovery. Perfect indoor climate is the top priority, because the quality of air we breathe affects our health, well-being, as well as the quality of sleep.

The unit ensures all the necessary conditions of perfect indoor climate even when operating in the offline mode. The cellulose recuperator allows recovering not only heat and cold, but also moisture, thus improving the unit efficiency and saving the user’s costs on heating, cooling, and maintenance of the required humidity level. The unit is easy to maintain thanks to the simple design, while the access door opening downwards facilitates installation in confined spaces. The recuperator and the filters can also be easily removed for maintenance or replacement.
In summer, the heat recovery system saves electric power on air conditioning by returning part of the outdoor heat back outside.

In winter, part of the indoor heat is returned into the room, providing considerable savings on space and air heating.

The data are given for reference. Much depends on the indoor air humidity, outdoor humidity, heat insulation of the room, heat insulation and length of the air ducts, etc.
| Specifications | Units | MVC500-A | MVC700-A | MVC1000-A | MVC1500-A | MVC2000-A |
| Air flow rate | m3/h | 500/360 | 750/550 | 1000/800 | 1500/1200 | 2000 |
| External pressure (high/low) | Pa | 290/260 | 290/260 | 485/365 | 485/470 | 490 |
| Enthalpy efficiency, cooling | % | 58 | 55 | 56 | 54 | 54 |
| Enthalpy efficiency, heating | % | 67 | 65 | 66 | 64 | 65 |
| Heat transfer efficiency, cooling | % | 60 | 56 | 59 | 55 | 58 |
| Heat transfer efficiency, heating | % | 71 | 69 | 71 | 68 | 69 |
| Noise level | dB | 40 | 48 | 48 | 50 | 55 |
| Voltage | V | 220 V, 50 Hz, 1 phase | 220 V, 50 Hz, 1 phase | 220 V, 50 Hz, 1 phase | 220 V, 50 Hz, 1 phase | 220 V, 50 Hz, 1 phase 380 V, 50 Hz, 3 phases |
| Input power (high/low) | W | 180/150 | 200/160 | 600/500 | 1100/900 | 1400 |
| Filters | pcs. | 2 | 2 | 4 | 4 | 4 |
| Recuperator | pcs. | 1 | 1 | 2 | 2 | 2 |
| Power cable | mm2 | 4х1.5 | 4х1.5 | 4х1.5 | 4х1.5 | 4х1.5 |
| Fan speeds | 2 speeds | 2 speeds | 2 speeds | 2 speeds | 2 speeds | |
| Duct connection | mm | 195 | 195 | 195 | 195 | 225*234 |
Ventilation units, MVC***-A series

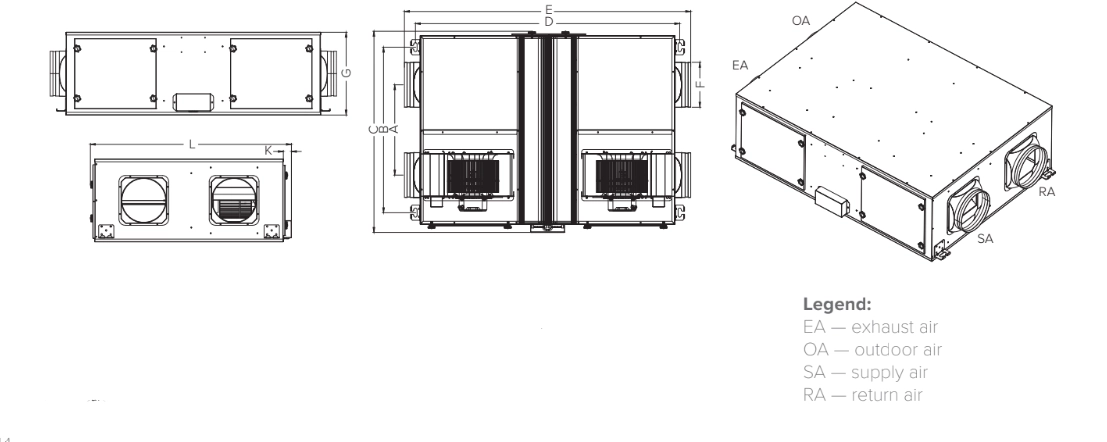
Ventilation units MVC500-A – MVC700-A
| Model | A | B | C | D | E | F | G | L | K | M | N |
| MVC500-A- MVC700-A | 446 | 750 | 785 | 596 | 861 | Ø194 | 272 | 768 | 793 | 49 | 252 |
All measurements are in millimetres.

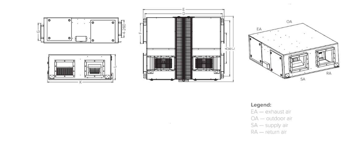
Ventilation units MVC1000-A
| Model | A | B | C | D | E | F | G | L | K |
| MVC1000-A | 399 | 731 | 888 | 1168 | 1265 | Ø198 | 366 | 888 | 36 |
All measurements are in millimetres.

Ventilation units MVC1500-A
| Model | A | B | C | D | E | F | G | L |
| MVC1500-A | 402 | 737 | 888 | 1168 | 1289 | Ø250 | 382 | 888 |
All measurements are in millimetres.

Ventilation units MVC2000-A
| Model | A | B | C | D | E | F | G | L | K |
| MVC2000-A | 457 | 837 | 988 | 1168 | 1223 | Ø306 | 260 | 382 | 988 |
All measurements are in millimetres.
